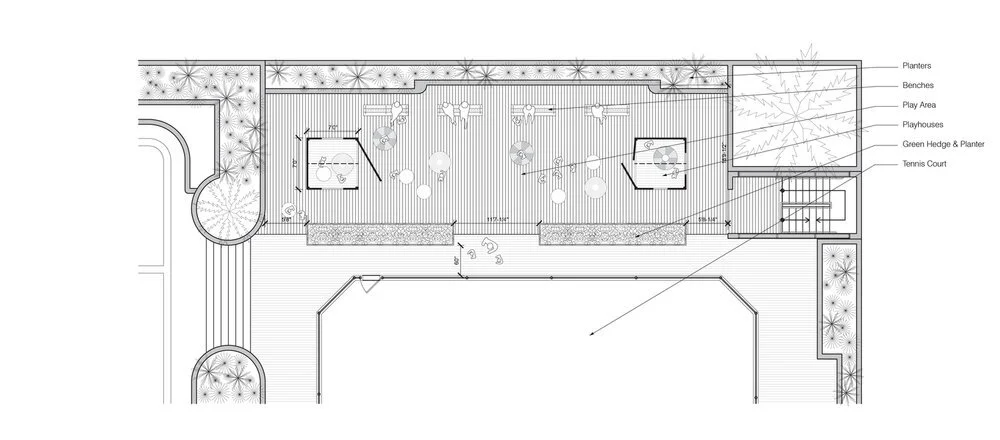
THE PLAY HOUSE

Miami Beach, FL

Role
Design Principal, Rubiostudio

Client
Grand Venetian Condominium

Collaborators
Julia Di Castri and Katherine Simson

Can a space have multiple meanings and possibilities? Can unlikely combinations of programs reveal their functions through rearrangement, reorientation, and appropriation? Can the children and family area of a large residential tower on Miami Beach have a day and a night? This project is an attempt to answer these questions on a residential scale in one of the most dynamic and playful environments in the U.S.

Previous
Previous

Warren Woods Road